易租赁云平台
店铺价值与面积
(1)销售型:
①双三角规律——大面积、小价格,小面积、大价格。销售型商铺合理的切小面积;
②商铺30~50、50~70、70~100㎡最好销售;
③单铺大于300万元较难销售。
(2)持有型:
① 商铺价值与层数关系:7A原理;
② 商铺租金随层数增加逐层减半;
③ 尽可能加大占地面积、降低层数。

店铺价值与位置
店铺价值与其所处层数及街区/盒子中的相对位置相关,与客流量紧密相关。
①销售型:金角、银边(外侧)、草肚皮

店铺分类


开间进深比
②一般情况下进深最大不要超过15m;
③常见铺为4.2mX12m。
①单铺面宽通常为一个柱距的一半,进深相同时,可两个商铺组合成大商铺;
案例:商铺面宽与柱距的关系


开间进深标准铺:4mx8~12m,4MX20M铺进深过大,不利于销售,同时影响后续经营。
单层铺

骑楼铺
二层骑楼铺


①骑楼店铺外廊柱网对齐铺间分隔;
②为提升整体价值,一般在中部设置小尺寸商铺,尽端为大尺寸商铺。

中部小尺寸商铺,尽端大尺寸商铺

一拖二铺
可通过组合两间单层铺形成一拖二店铺来提升整体价值。”一拖二“店铺通过户内楼梯连接首层、二层,且首层、二层作为一个独立单元同时销售的商铺,单个商铺间无连通。

• 5.1m、4.8m、4.5m层高楼梯占商铺面积百分比分别为20.37%、20.03%、19.36%


泰国ICONSIAM 购物中心
店铺立面设计
单层商铺采用分体式空调且商铺背部为其他功能房间;店铺立面通常呈现为三段式,店铺标示、空调位、商铺门,商铺门宽除去必要的设备宽外做满墙宽。
案例:室内商铺立面设计1
立面呈现为两段式或三段式

案例:室外商铺立面设计2

案例:组合商铺立面

可适用于“一拖二”式商铺及两层独立产权的商铺。将两层立面综合设计,广告位放置于醒目的二层,店铺标示放置于层间梁处,给店铺展示尽可能大的空间。
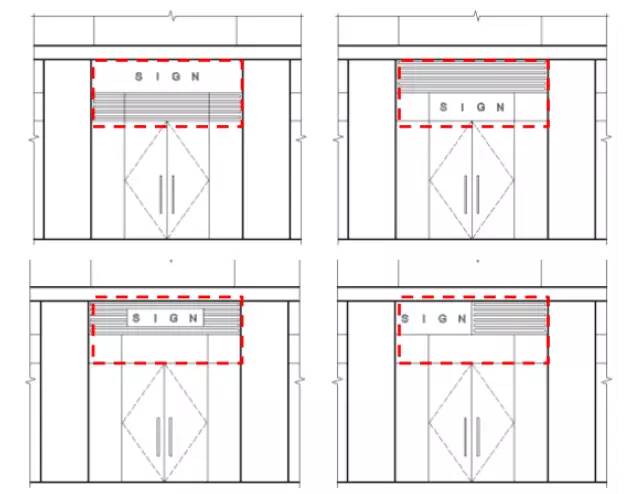
广告位与空调排列方式
单层商铺立面广告位与空调格栅排列可分为上下式、左右式、包含式。
案例:普通商铺立面广告位与空调格栅的4种排列

单铺独立空调需要在门上加板。

单层商铺立面无空调格栅,空调放于屋顶、铺侧边或商铺间,店铺广告放置更加灵活,可结合店铺门设计。
店铺净高设计
以万科壹海城项目为例,商铺层高为5.1m,梁高为0.9m。商铺中有风管在不加吊顶情况下净高为3.35m,无风管商铺在不加吊顶情况净高为3.85m。

(一)社区商铺店招设计要点
商铺店招3大类型

主广告牌位于建筑楼梯上的主要商业广告,可供物业出租,广告设计应与建筑立面结合设计。
② 商家集中标识

店招设计的4大原则
a.指示性标识:引导消费者至特定区域(如卫生间、吸烟区、问询处等)的标识;
b.装饰性标识:为促进商业氛围而设置的装饰性构件,上面有店铺编号、店招或品牌理念等信息;
c.警示性标识:为规范合理的消费行为而设置的警示性标识。
② 适应性
a.预留足够的广告位和店招位:商业的广告招牌需要预留,为适应不同类型商业对店招广告位的需求,需要考虑一定的灵活性;二层及以上可结合建筑立面划分,预留大幅广告位置,并根据商铺使用情况连续或分段设置。
b.预留商家的个性化店招可能性:店招应考虑后期商家经营改造的可能性(如合并商铺等)。

③昭示性
a.尽可能使不同位置不同角度都能看到;
b.结合外立面做多层次招牌。商业的广告招牌在规划设计的时候,要追求多层次、多角度的昭示性,招牌的可见性越强,价值越高。因此,在进行店招设计时需对其尺寸、比例、角度,针对不同动线人流的视线进行分析。
值得注意的是,骑楼影响商铺的昭示性,如没有在外立面设计预留广告位,容易造成商家随意增加广告面。
设计应设置几个强制因素,如店招的高度、深度、宽度、基本样式、材质,商家必须遵守;后期管理应有管理手册来控制商家的店面改造。
(二)商铺细部设计要素
层高
影响层高的因素:①梁高(根据柱距而定);②设备层高包括消防、烟道横管、桥架、空调位等;③净高。
店招

门头橱窗或展示面
设计原则:
①通用性,不做个性化设计,兼顾店招适应性及可控性;
②通透性原则,保证足够的展示面,避免出现剪力墙遮挡门面;


雨篷

空调
③避免出现空调位对着人流吹的情况。
(三)商铺户型设计
(1)能提供客户附加值的(如增加层高赠送面积)应尽可能提供附加值。
(2)商铺最小面宽应不小于3m,进深面宽比不超过4:1。
(3)建议非住宅下部商铺柱网为8m*8m,以方便拆分成4m+4m面宽,或3m+5m面宽,对地下车库停车位布置也比较经济。
(4)商铺(无外廊)得房率(套内建筑面积/销售面积*100%)不应低于90%。
a. 商铺位于区域商业中心位置,人流量很大,商业销售价值很高。
B. 做100m2以上大户型(依然可以取得很高的销售价值)。
(7)底层商铺层高应考虑上部管线转换的影响,满足商铺的净空要求。
(8)复式户型设计应尽可能提高二层空间的经营价值,建议:
a.降低首层层高(满足净高低限即可),缩短客户上二层楼梯的距离。
b.入口做挑高二层的空间,增加上下层互动。
c.上二层楼梯应做成简易钢梯,方便客户拆改。
免责声明: 本文内容分享自网络,版权归原作者所有。